Stand der Planung Mitte 2022
Stand der Planung Mitte 2022
Der historische Baukörper
Der historische Baukörper
Das Gebäude wurde elektronisch vermessen und in ein 3D-Modell umgesetzt

Originalgetreue Restauration
Originalgetreue Restauration
Das Gebäude soll in seinem ursprünglichen Erscheinungsbild wieder hergestellt werden. Auf Basis der historischen Pläne wurde der Baukörper innen und außen aufwendig elektronisch vermessen und eine 3D-Planung eingestellt. Nach intensiver Abstimmung mit dem Denkmalschutz ist dies die Grundlage für alle Arbeiten am Gebäude.
Bauliche Ertüchtigung
Das Kellergeschoss unter der Treppe zum Park wies erhebliche Wasserschäden auf und galt schon länger als stark einsturzgefährdet. Daher wird dieser Bereich abgetragen und neu aufgebaut. Der zuerst als kostenintensiver Schadensfall beurteilte Bauabschnitt bietet mit dem Neubau allerdings auch Chancen. Unter dem Treppenbereich soll der Spa- und Wellnessbereich entstehen.
Der großherzogliche Park
Der großherzogliche Park
Der Park des großherzoglichen Palais wird nach den historischen Plänen angelegt.

Gestalterische Einheit
Gestalterische Einheit
Die Parkanlagen sollen vielfältige Möglichkeiten für öffentliche Veranstaltungen bieten und als Treffpunkt für Kommunikation und Kultur genutzt werden können. Der erforderliche Parkplatzraum ist über die rückwärtige Zufahrt erschlossen. Palais und Nebengebäude werden eine gestalterische Einheit bilden.
Denkmalpflege
Der in der Denkmalpflege renommierte Landschaftsarchitekt Andreas Webersinke, Rostock, plant und überwacht die Gestaltungen des Parks am Großherzoglichen Palais. Vorlage für alle Überlegungen sind die historischen Pläne für die Anlage des Parks.
Im historischen Palais wird ein modernes Hotel geplant
Im historischen Palais wird ein modernes Hotel geplant
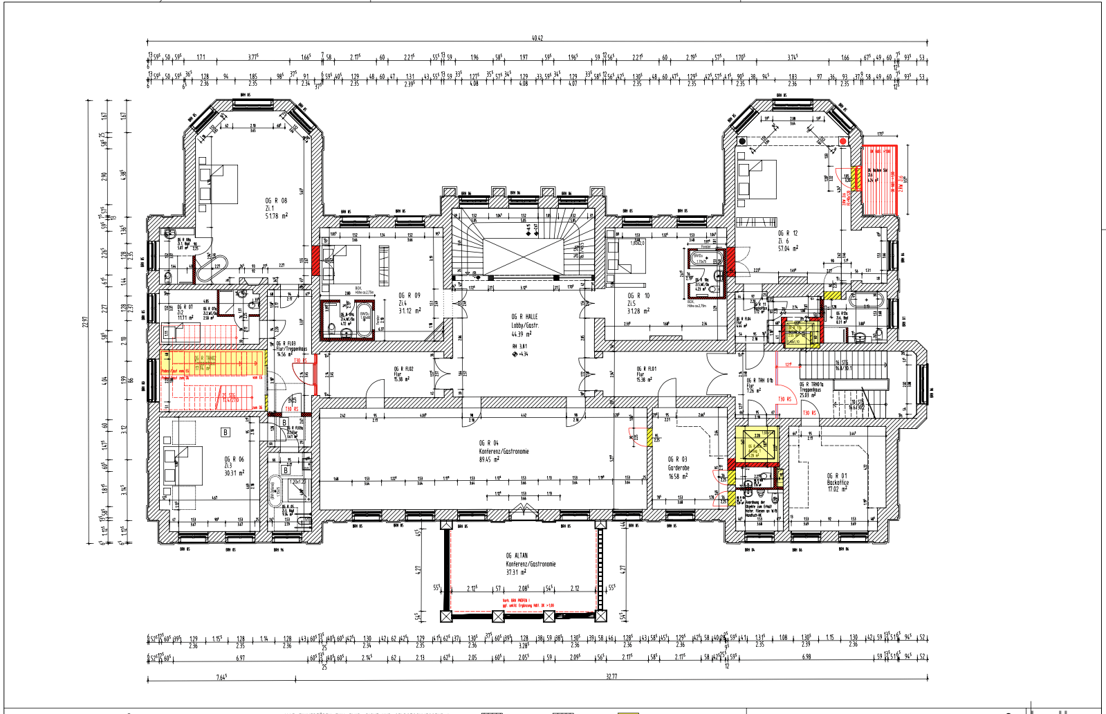
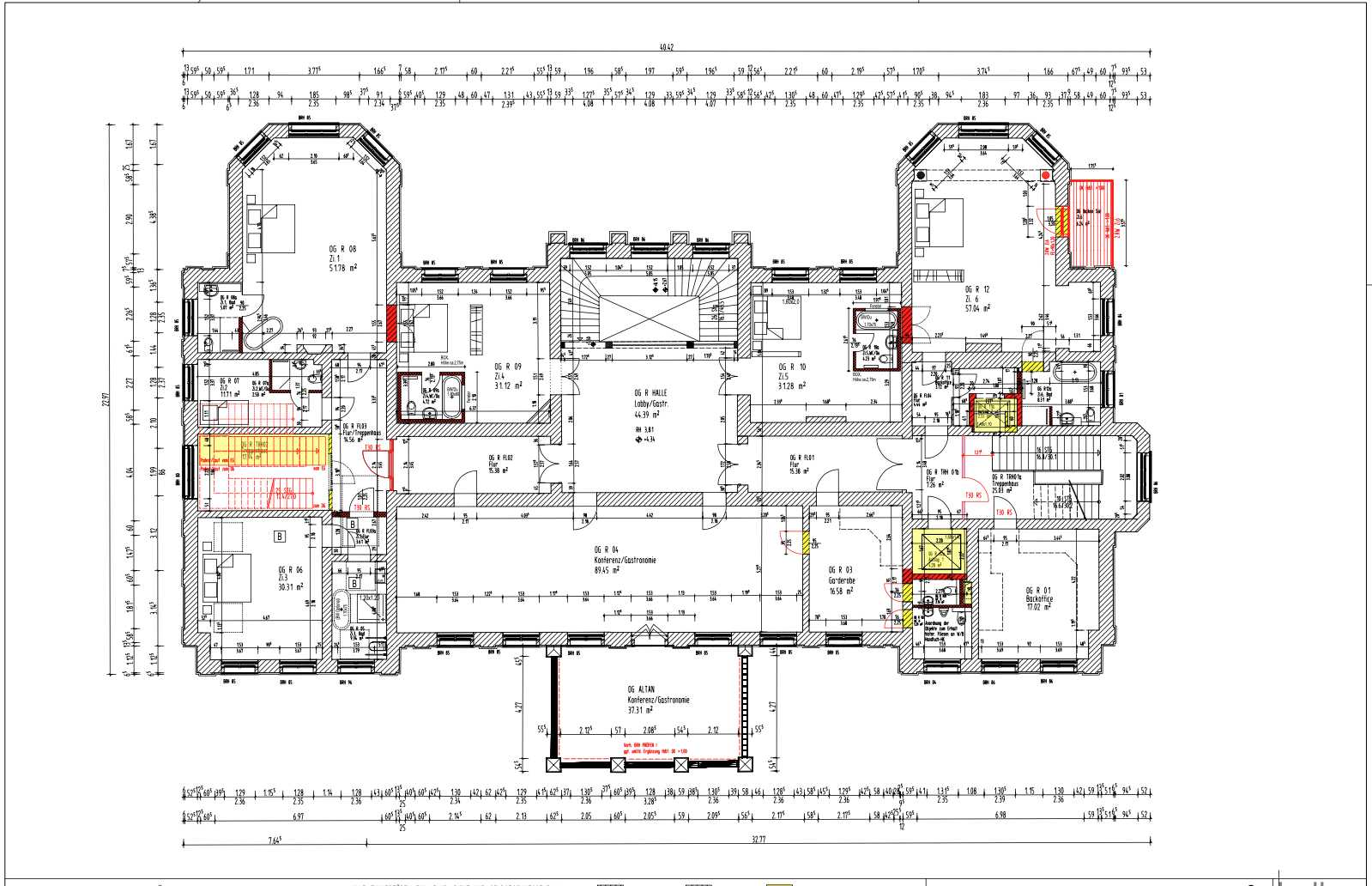
Ein Fall für geniale Planer: Moderne Strukturen in die historische Bausubstanz setzen.

Minimale Eingriffe
Minimale Eingriffe
Die Grundrisse des Palais sind unveränderlich vorgegeben. Aber mit guten Ideen entfaltet das historische Gebäude eine wunderbare gastronomische Erlebniswelt. Lobby, Foyer, Bar, Salon,... in perfekter Anordnung. Als hätten die Architekten schon damals an eine Nutzung mit anspruchsvollen Hotelgästen gedacht. Die wenige Eingriffe sind der Sicherheit und der Barrierefreiheit geschuldet.











